Nieuw in verkoop:Parallelstraat 13A, 3043 GK Rotterdam - Foto
Nieuw in verkoop
+17

Parallelstraat 13A 3043 GK Rotterdam € 275.000,- k.k.

  • Appartement
  • 3 kamers
  • 2 slaapkamers
  • 1 badkamer
  • Bouwjaar 1929
  • 75 m² gebruiksoppervlakte
  • G Energielabel G

Beschrijving

Sfeervol wonen met potentie in het hart van Rotterdam

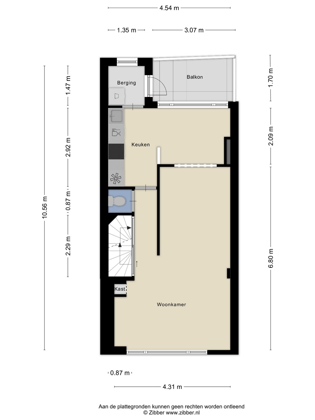
Aan de Parallelstraat 13 A in Rotterdam bevindt zich deze charmante dubbele bovenwoning met een verrassend ruime indeling en volop mogelijkheden. Deze woning is ideaal voor kopers die op zoek zijn naar een fijne woonplek die zij naar eigen smaak kunnen moderniseren en optimaliseren. Dankzij de praktische indeling en het royale balkon biedt deze woning een uitstekende basis voor comfortabel stadswonen.

De woning beschikt over twee goed bemeten slaapkamers en een lichte woonkamer waar grote raampartijen zorgen voor een prettige hoeveelheid daglicht. De bovenverdieping geeft extra ruimte en flexibiliteit, perfect in te richten als slaapverdieping, werkruimte of combinatie daarvan.

Een van de absolute pluspunten is het ruime balkon, waar je heerlijk kunt genieten van de buitenlucht – een zeldzame luxe in de stad. De woning maakt deel uit van een kleinschalige VvE, die momenteel niet actief is maar wel ingeschreven in de KvK, in overleg kan het eenvoudig geactiveerd worden.

Gelegen in Rotterdam, met voorzieningen, openbaar vervoer en uitvalswegen binnen handbereik, combineert deze woning stedelijke dynamiek met wooncomfort.

Kortom: een woning met karakter, ruimte én potentie – perfect voor starters, handige kopers of investeerders die waarde willen creëren.

Kenmerken van de woning:

- Dubbele bovenwoning
- Aantal slaapkamers: 2
- Ruim balkon
- Veel lichtinval
- CV-ketel (huur)
- VvE is ingeschreven in KvK
- Gelegen in een levendige en goed bereikbare omgeving

Kaart

Kenmerken

Overdracht

Referentienummer
00096
Vraagprijs
€ 275.000,- k.k.
Status
Nieuw in verkoop
Aanvaarding
Direct
Aangeboden sinds
Donderdag 16 april 2026

Bouw

Type object
Appartement, bovenwoning, dubbelbovenhuis
Woonlaag
2e woonlaag
Soort bouw
Bestaande bouw
Bouwperiode
1929
Isolatievormen
Dubbel glas

Oppervlaktes en inhoud

Woonoppervlakte
75 m²
Inhoud
247 m³
Oppervlakte gebouwgebonden buitenruimte
5 m²

Indeling

Aantal bouwlagen
2
Aantal kamers
3 (waarvan 2 slaapkamers)
Aantal badkamers
1 (en 1 apart toilet)

Energieverbruik

Energielabel
G

CV ketel

Warmtebron
Gas
Eigendom
Huur

Uitrusting

Warm water
CV-ketel
Verwarmingssysteem
Centrale verwarming
Heeft een balkon
Ja

Kadastrale gegevens

Kadastrale aanduiding
Overschie B 6250
Omvang
Appartementsrecht of complex
Eigendomsituatie
Eigen grond
Indexnummer
2