Verkocht onder voorbehoud:Beeklaan 168, 2562 AP Den Haag - Foto
Verkocht onder voorbehoud
+17

Beeklaan 168 2562 AP Den Haag € 269.000,- k.k.

  • Appartement
  • 3 kamers
  • 2 slaapkamers
  • 1 badkamers
  • Bouwjaar 1906
  • 58 m² gebruiksoppervlakte
  • Gestoffeerd
  • D Energielabel D

Beschrijving

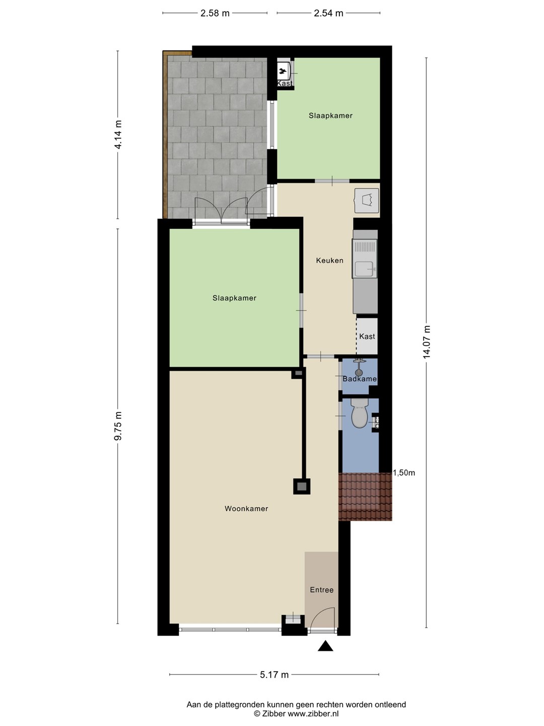
Wonen aan de Beeklaan – met stadstuin!

Welkom op de Beeklaan in het bruisende hart van Den Haag! Of je nu starter bent, een stel of iemand die op zoek is naar een fijne woning met buitenruimte — deze plek is het ontdekken waard.

Bij binnenkomst valt direct de frisse en verzorgde uitstraling op. De doorlopende houtlook vloer en neutrale wanden zorgen voor een rustige basis die je eenvoudig naar eigen smaak kunt aankleden. De woonkamer aan de voorzijde biedt een aangename leefruimte met grote raampartijen die veel natuurlijk licht binnenlaten.

De twee slaapkamers aan de achterzijde bieden rust en privacy. Vanuit de achterste kamer stap je direct de stadstuin in: een knusse buitenruimte waar je kunt genieten van de ochtendzon, een boek of een gezellig etentje buiten.

De keuken en badkamer zijn netjes maar eenvoudig en kunnen – indien gewenst – met wat aandacht naar een moderner niveau worden gebracht.
Dankzij de actieve VvE en de maandelijkse bijdrage van €60,69 wordt toekomstig onderhoud gezamenlijk goed bewaakt.

Een groot pluspunt: alle kozijnen, ramen en de pui zijn in 2025 volledig vernieuwd. De woning is dus voorzien van moderne kunststof kozijnen met isolerende beglazing — onderhoudsarm en energiezuinig, waardoor je jarenlang zorgeloos kunt wonen.

Laat je verrassen door de fijne ligging, de praktische indeling en de sfeervolle stadstuin. Dit is een woning met potentie, waar je met een paar persoonlijke aanpassingen echt je eigen plek van kunt maken.

Kenmerken van de woning:
- Instapklaar 3-kamer appartement op de begane grond
- Alle ramen, kozijnen en pui zijn vervangen in 2025
- Woonoppervlakte ca. 58 m²
- Ruime en lichte woonkamer met grote raampartijen
- Twee slaapkamers aan de rustige achterzijde
- Eigen stadstuin: beschut en onderhoudsvriendelijk
- Actieve en gezonde VvE, bijdrage € 60,69 per maand
- Gelegen in een levendige wijk met winkels, OV en horeca op loopafstand

Of je nu starter bent of een (jong) gezin: deze woning biedt alles wat je zoekt. Plan snel een bezichtiging en ervaar zelf het comfort van duurzaam wonen aan de Beeklaan 168, Den Haag.

Kaart

Kenmerken

Overdracht

Referentienummer
00082
Vraagprijs
€ 269.000,- k.k.
Inrichting
Ja
Inrichting
Gestoffeerd
Status
Verkocht onder voorbehoud
Aanvaarding
Direct
Aangeboden sinds
Woensdag 22 oktober 2025
Laatste wijziging
Donderdag 20 november 2025

Bouw

Type object
Appartement, benedenwoning
Woonlaag
1e woonlaag
Soort bouw
Bestaande bouw
Bouwperiode
1906
Isolatievormen
Dubbel glas

Oppervlaktes en inhoud

Woonoppervlakte
58 m²
Inhoud
190 m³

Indeling

Aantal bouwlagen
1
Aantal kamers
3 (waarvan 2 slaapkamers)
Aantal badkamers
1 (en 1 apart toilet)

Tuin

Type
Achtertuin

Energieverbruik

Energielabel
D

CV ketel

Warmtebron
Gas
Eigendom
Eigendom

Uitrusting

Warm water
CV-ketel
Verwarmingssysteem
Centrale verwarming
Tuin aanwezig
Ja

Vereniging van Eigenaren

Ingeschreven bij de KvK
Ja
Jaarlijkse vergadering
Ja
Periodieke bijdrage
Ja
Reservefonds
Ja
Meer jaren onderhoudsplan
Ja
Onderhoudsverwachting
Ja
Opstal verzekering
Ja

Kadastrale gegevens

Kadastrale aanduiding
's-Gravenhage AM 7534
Omvang
Appartementsrecht of complex
Eigendomsituatie
Eigen grond